Industrial Design
Graphic Design
Art
About Me
Industrial Design
Graphic Design
Art
About Me
Zoe Mocklar
Ideation Sketches
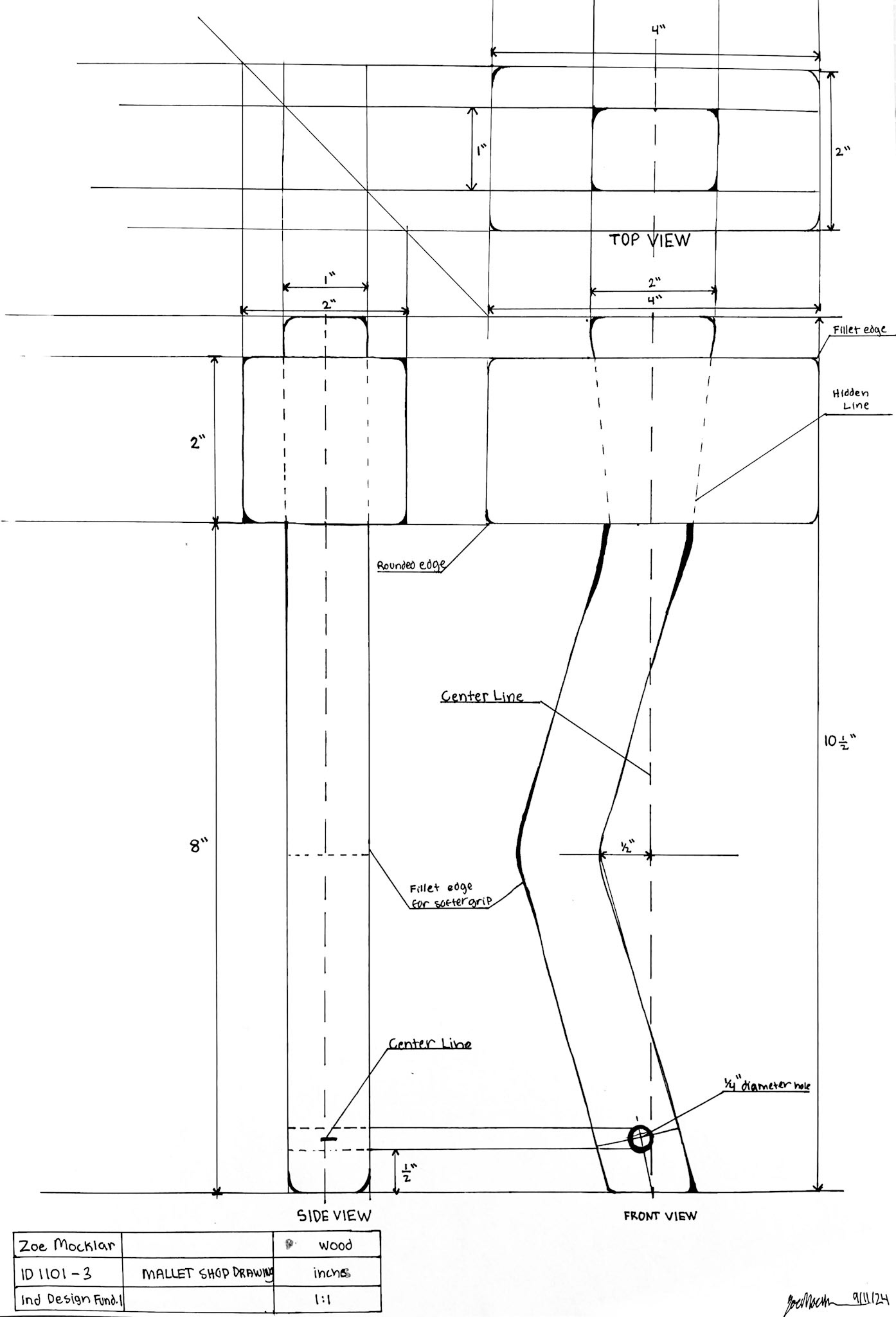
Orthographic Drawing
You may also like
Shoe Project: Tulip: Designed to Decompose
2025
Watering Can and Planters
2025
Bracket and Shelf Design Project
2025
Wooden Bunnies
2024
Stool Project
2025
↑
Back to Top